Italiano
110.000 €

Bilocale arredato con balcone

2 locali in vendita • Varese (Ospedale) - Via Muratori, 5
Nelle immediate vicinanze dell'Ospedale di Circolo, in una zona residenziale tranquilla e caratterizzata da piccole palazzine di soli due livelli, proponiamo in vendita un bilocale mansardato dall'atmosfera accogliente e funzionale.

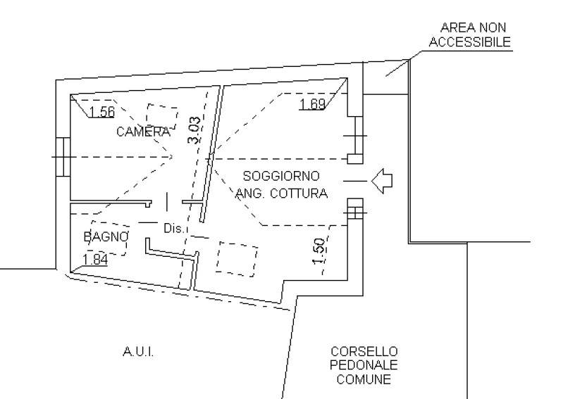
L’appartamento, ubicato al primo ed ultimo piano, si apre su un luminoso soggiorno con angolo cottura. Un’ampia porta finestra regala luce naturale e permette l’accesso diretto a un balcone.

La zona notte è ben separata e si sviluppa attraverso un comodo disimpegno che conduce alla spaziosa camera matrimoniale e al bagno.

Un’opportunità abitativa pensata per chi ricerca comfort, funzionalità e un contesto piacevole vicino ai principali servizi cittadini.

Questo immobile rappresenta un’interessante opportunità di investimento, ideale per chi desidera ottenere una rendita stabile e vantaggiosa nel tempo. Grazie alla sua collocazione in un contesto residenziale apprezzato e in una zona caratterizzata da una forte domanda di locazioni, offre un eccellente potenziale di redditività.

La vicinanza ai principali servizi, la qualità dell’abitazione e il mercato locale favorevole fanno sì che gli immobili in questa area siano particolarmente ricercati, garantendo rendimenti competitivi e un valore che si consolida nel tempo. Una scelta strategica per chi cerca un investimento sicuro e profittevole nel settore immobiliare.

Per ulteriori informazioni su questo immobile, contattaci ai numeri 0332/831691 - 0332/286767 oppure vieni a trovarci nei nostri due uffici in centro a Varese in Corso Matteotti, 49 e in via Staurenghi, 27
Siamo aperti dal lunedì al venerdì dalle ore 9.00 alle ore 12.30 e dalle ore 15.00 alle ore 19.30 e al sabato dalle ore 9.00 alle ore 12.30
Altre interessanti proposte le troverai direttamente sul nostro sito www.ossolaimmobiliare.it
Caratteristiche principali
Codice
VB261B
Città
Varese (Ospedale)
Categoria
2 locali
Prezzo
110.000 €
Spese condominiali
360 € / anno
Locali
2
Camere
1
Bagni
1
Mq
55
Balconi
1
Piano
1
Classe energetica
C
Stato Immobile
Nuovo
Grado
Medio
Panorama
Vista Giardino
Orientamento
Sud Nord
Lati Liberi
2
Giardino
Privato
Arredi
Arredato
Tipo Soggiorno
Sala da Pranzo
Tipo Cucina
A Vista
Riscaldamento
Autonomo
Tipo Impianto
Radiatori
Acqua Calda
Autonoma a Pannelli
Infissi
Legno Doppio Vetro
Serramenti
Nuovo
Persiana
Tapparella Legno
Pavim. Giorno
Ceramica
Pavim. Notte
Parquet
Pavim. Cucina
Ceramica
Pavim. Bagno
Ceramica
Accesso Disabili
Nessuna Barriera

Accessori: Pannelli Solari

Mappa
Via Muratori 5, Varese (VA)
Video
Condividi su
Cookie preference