Italiano
93.000 €

Varese, Biumo inferiore

Ufficio in vendita • Varese (Biumo Inferiore) - via Canova, 25
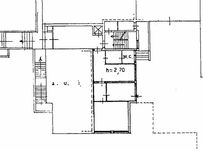
In palazzina degli anni ’70, in posizione strategica comoda per tutti i servizi , proponiamo ufficio al piano terra di circa 90 mq. L’immobile è composto da ingresso/reception, tre vani utilizzabili come uffici o studi, bagno, due posti auto di proprietà all’interno dell’area condominiale.
Soluzione ideale per professionisti, studi tecnici, attività di consulenza o piccole realtà che cercano una sede facilmente raggiungibile e con spazi funzionali.
€ 93.000
Caratteristiche principali
Codice
VU 1340
Città
Varese (Biumo Inferiore)
Categoria
Ufficio
Prezzo
93.000 €
Spese condominiali
600 € / anno
Locali
3
Bagni
1
Mq
90
Posti auto
2
Classe energetica
G
Stato Immobile
Buono
Grado
Medio
Orientamento
Nord Est Sud
Lati Liberi
3
Riscaldamento
Autonomo
Tipo Riscaldam.
Caldaia
Tipo Impianto
Radiatori
Fonte Energetica
Metano
Acqua Calda
Autonoma
Serramenti
Buono
Pavim. Cucina
Ceramica
Pavim. Bagno
Ceramica
Pavimento
Ceramica
Accesso Disabili
Nessuna Barriera

Accessori: Cancello Elettrico, Doppi Vetri, Porta Blindata, Ripostiglio

Mappa
via Canova 25, Varese (VA)
Video
Condividi su
Cookie preference